市建院-关于建筑设计 我们你更懂

市政公共建筑设计:澳大利亚 UNSW Health Translation Hub/案例

返回列表 来源: 发布日期: 2026.04.28

26

设计:Architectus

01

02

03

04

05

06

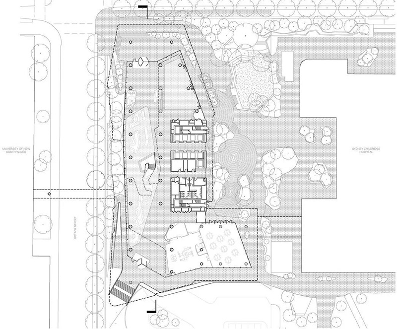
新南威尔士大学健康转化中心(Health Translation Hub,简称 HTH)被构想为创新、协作与社区交流的标志性建筑,其建筑与景观设计巧妙地连接了新南威尔士大学肯辛顿校区与兰德威克健康与创新区(Randwick Health and Innovation Precinct,简称RHIP)。设计将教育、研究与医疗服务融合在一个互联的生态系统中,促进了知识交流与健康转化成果的产出,从而缩短了健康研究与临床实践之间的反馈循环。

07

08

09

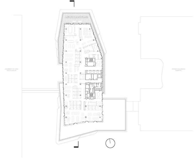
HTH 战略性地坐落于 High 街与 Botany 街的交汇处,建筑开放通透的底层平面将公众流动融入场地,提供了连接周边交通网络与校园及健康目的地的重要通道。两座玻璃人行天桥进一步强化了这种连通性,西侧连接华莱士·沃斯大楼(Wallace Wurth Building),东侧连接悉尼儿童医院(Sydney Children's Hospital)与明德鲁儿童综合癌症中心(Minderoo Children's Comprehensive Cancer Centre),实现了人员、思想与发现的无缝流动。

010

011

012

013

014

015

016

017

018

建筑高 14 层,设计以轻盈、通透与动感为特点,独特的立面灵感源自悉尼东海岸风蚀沙丘的形态,是对地域与场所的当代诠释。由突出遮阳板、双层玻璃与保温板组成的立面系统提供了遮阳功能,同时减轻了建筑的体量感。玻璃增强混凝土(GRC)面板、弧形铝制遮阳板与高性能玻璃的组合使太阳辐射减少了 60%,同时保持了视觉的通透与开放。这一分层系统创造了深度与质感,全天捕捉光影的变化。底层高度透明的立面增强了通透性与欢迎感,而塔楼“天空之色”的轻盈表现则成为了园区的地标性灯塔。材质选择汲取了当地景观的沙色调与质感灵感;浅色砖石、大面积玻璃与混凝土饰面使建筑扎根于场地。

019

020

021

022

023

024

025

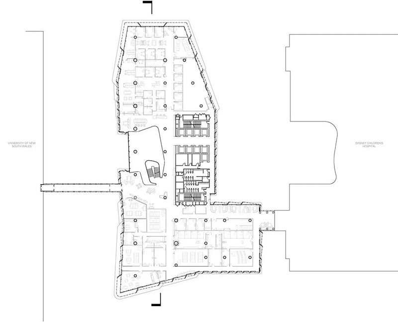
在 HTH 的中心,一个多层次的中庭环绕着建筑的社交与协作核心。这个充满光线的垂直空间通过层叠的特色楼梯与宽敞的流通区域,在视觉与物理上连接了四个裙楼层面。室内设计借鉴了建筑与景观设计中提及的海岸地貌,创造了由实体化组件构成的基准面,形成了座椅、桌子、长凳与种植区。

027

028

029

030

031

032

033

文章转自:小微设计

联系建筑学院

  • 手机: 400-179-8989
  • 传真:0851-879787666
  • QQ:1379404366
  • 邮箱: 1379404366@qq.com
  • 地址:贵阳市观山湖区金阳北路227号
贵公网安备 52011502000460号 贵阳市建筑设计院 Copyright © 2017 贵阳市建筑设计院有限公司 All Rights Reserved 备案号:黔ICP备17005070号